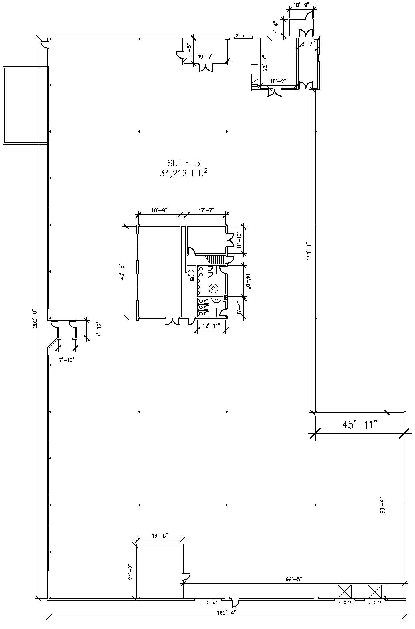
Twinsburg, OH | 34,212 SF
Warehouse and Office Space For Lease
8400 Darrow Road, Twinsburg, OH 44087
Property Details
This affordable warehouse with office space for lease is available now in Twinsburg, Ohio. It features 2 docks, 1 drive-in, and is located within close proximity to I-480, I-271, and the Ohio Turnpike. There is 34,212 SF of warehouse with 1,660 SF of office space available with ample parking.
There is an additional 5,416 SF of noncontiguous office space in front of the building as well.
Twinsburg is a suburb of Cleveland. It is business-friendly and boasts low taxes while being focused on the growth and revitalization of its commercial and industrial districts.
Additional Information
similar properties
Contact us
We want to hear from you! Join our mailing list to get the latest info on everything from available properties to industry news. We never share our mailing list, nor do we bother you with useless emails – just news you can use. Thank you for your interest!